La Policía Nacional proyecta obras para trasladar la Oficina de Documentación y Atención al Público
CONTRATACIÓN
La superficie que D.G.T. cedió a las oficinas del S.E.P.E. en ambas plantas, es la que ahora va a ceder también para que la Policía Nacional pueda establecer las Oficina de Documentación, la Oficina de Denuncias y Atención al Ciudadano (O.D.A.C.)
 
            La División Económica y Técnica del Cuerpo Nacional de Policía ha sacado a licitación el contrato por el que se llevará a cabo el proyecto de reforma de local para dar traslado a la Oficina de Documentación, como también la Oficina de Denuncias y la Atención al Ciudadano (ODAC), que se distribuirán entre la planta baja y el semisótano del local ubicado en la calle Rampa de Abastos, número 6. Al respecto, dichos trabajos cuentan con un valor estimado de 79.968€ y un plazo de ejecución de 6 meses. En este contexto, las fechas para la obtención de pliegos terminarán el 19 de enero a las 12:00 horas, y la apertura sobre oferta económica se celebrará el 24 de enero a las 09:00 horas.
 
            En lo que se refiere al local, la superficie que D.G.T. cedió a las oficinas del S.E.P.E. en ambas plantas, es la que ahora va a ceder también para que la Policía Nacional pueda establecer las Oficina de Documentación y la Oficina de Denuncias y Atención al Ciudadano (O.D.A.C.), ya que se precisa para "subsanar y dar solución a las carencias de espacio que actualmente tiene la Jefatura Superior de Policía de Ceuta", indican las prescripciones técnicas.
 
            La Oficina de documentación se adapta en cuanto a distribución al funcionamiento que ya tenía este local. Es decir, desde el acceso existente por calle Rampa de abastos se entra a un vestíbulo previo o zona de espera, delimitada por un gran mostrador en forma de “L”, que la separa de la zona de trabajo donde se encuentran 6 puestos de trabajo de los funcionarios de documentación. Todo este espacio es diáfano, por lo que se mantiene la relación visual entre la zona de trabajo (Zona de Expedición) y la zona de espera.
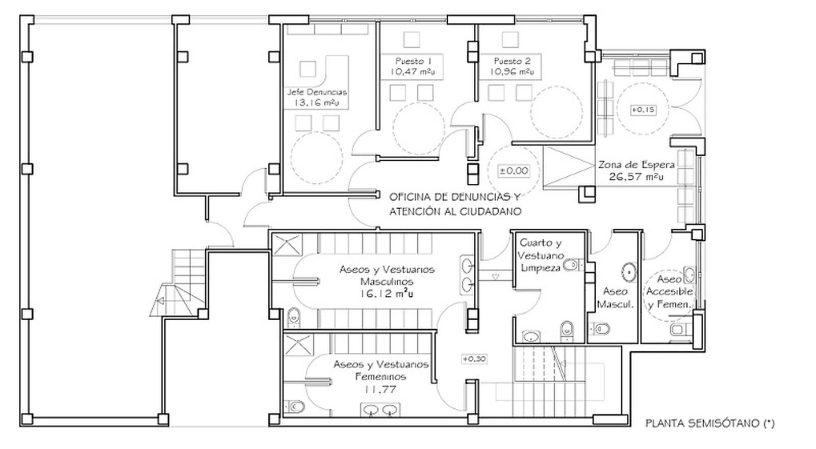
La planta semisótano requiere una reforma profunda para ponerla en funcionamiento como una oficina de atención al público. En esta planta, se quiere albergar la Oficina de O.D.A.C, pero en este proyecto la reforma que se contempla es básicamente una redistribución de espacios y la ejecución de una nueva red de saneamiento.
"El local comercial en planta baja se compone de una entrada por calle Rampa de abastos desde la que se accede por rampa y escalera a una zona de espera delimitada por una barra mostrador que separa la antigua zona de espera de la zona de oficinas, estando todo de manera diáfana, exceptuando compartimentación para un despacho, una escalera que baja al semisótano. El local se encuentra dividido en dos zonas debido a las zonas comunes de las viviendas del edificio. La zona de mayor superficie es la que hemos descrito anteriormente y la otra zona, más reducida, al otro lado de la escalera contiene los aseos del personal precedido de una pequeña área utilizada para instalaciones de telecomunicaciones", explica la documentación al respecto del proyecto.
 
             
             
             
             
             
             
             
            